Planungssoftware Geberit ProPlanner Mit Geberit sicher planen
Mit der Planungssoftware Geberit ProPlanner stellt Geberit Ihnen ein ausgereiftes Werkzeug zur Verfügung.
Der Geberit ProPlanner ist zugeschnitten auf die Bedürfnisse von planenden Installateuren und Sanitärunternehmern, die sich selbst um die Planung und Kalkulation mittlerer bis größerer Projekte kümmern.
Die Planungsmodule decken die gesamte Geberit Sanitärtechnik ab von Trinkwasser-, Abwasser- und Installationssystemen (Geberit Duofix) ab. Geberit stellt die ProPlanner Software kostenlos zur Verfügung.

Planungsmodule
Installationssysteme
Schnelle, einfache und effiziente Installationssystemplanung:
- Planung von Installationssystemen
- Produktsortimente Geberit Duofix und Geberit GIS
- Planung in der Schnelleingabe
- Schnelle, einfache und effiziente Installationssystemplanung
- Exportfunktion zum Modul Detailplanung 3D
- CAD-Exportschnittstelle (Autodesk® RealDWG®)
- Neueste Regelwerke und Geberit Produkte integriert
- Berechnung nach Geberit Richtlinien und Regelwerken
- Automatische Ausgabe von Material-, Stück-, Angebots- und Zuschnittslisten
- Automatische Ausgabe von Grundriss-, Aufriss- und Montagezeichnungen

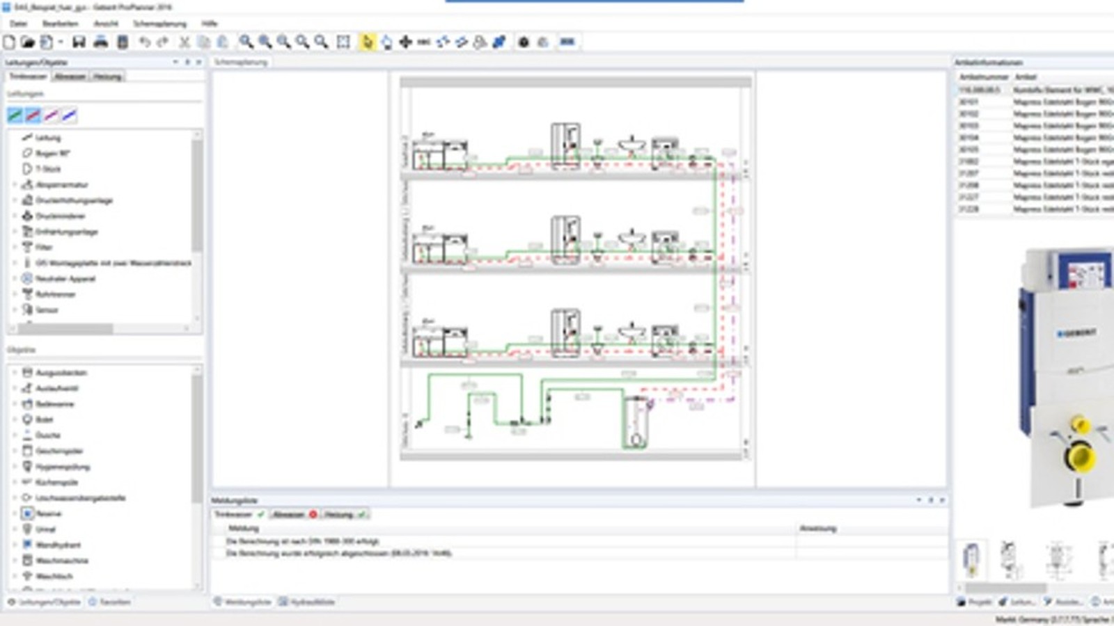
Schemaplanung
Zeichnerisch detaillierte Rohrleitungssystemplanung:
- Planung von Trinkwasser- und Abwassersystemen
- Produktsortimente Geberit Mepla, Geberit PushFit, Geberit Mapress Edelstahl, Geberit Mapress Kupfer, Geberit PE, Geberit Silent-PP, Geberit Silent-db20 und Geberit Silent-Pro
- Planung im Schema
- Zeichnerisch detaillierte Rohrleitungssystemplanung
- CAD-Exportschnittstelle (Autodesk® RealDWG®)
- Neueste Regelwerke, Normen und Geberit Produkte integriert
- Berechnung nach länderspezifischen Normen
- Automatische Ausgabe von Material-, Stück-, Hydraulik- und Angebotslisten
- Automatische Ausgabe von Schemazeichnungen

Software-Download und -Lizenzierung
Softwarelizenzen
Durch eine einmalige Registrierung nach der Installation von Geberit ProPlanner erhalten Sie einen Lizenzschlüssel, mit dem das Modul Installationssysteme kostenlos freigeschaltet wird.
Mit der Firmenlizenz können Sie Geberit ProPlanner innerhalb Ihres Unternehmens beliebig oft installieren und aktivieren. Für Anwender in Ausbildung sowie alle Bildungseinrichtungen steht die Software kostenlos zur Verfügung.
Software-Download
Laden Sie die neueste Programmversion der Planungssoftware Geberit ProPlannerPlanungssoftware Geberit ProPlanner herunter.
Systemvoraussetzungen
Bitte prüfen Sie vor dem Download der Planungssoftware die notwendigen Systemvoraussetzungen:
| Minimum | Empfohlen | |
|---|---|---|
| Betriebssystem | Windows 7 SP1 | Windows 7 SP1 Windows 8 / 8.1 / 10 |
| Prozessor | Intel Pentium 4 oder AMD Athlon 64, 1.8 GHz | Mehrkernprozessor > 2 GHz |
| Arbeitsspeicher | 2 GB | 4 GB |
| Festplattenspeicher | 3 GB frei | 6 GB frei |
| Grafikkarte | 64 MB, DirectX 9 | 256 MB, DirectX 9 |
| Bildschirm | 1280 Pixel horizontale Auflösung, 900 Pixel vertikale Auflösung 96 dpi (Anzeigegröße) empfohlen | 1400 Pixel horizontale Auflösung, 1024 Pixel vertikale Auflösung |
| Onlinedienste | Zugang zum Internet notwendig Gültige E-Mail-Adresse | |
| Systemkomponenten | Werden mitgeliefert und automatisch installiert: - Microsoft .NET Framework 4.6 - Microsoft DirectX 9 |
Links
Geberit ProPlanner Download: